Millwork Shop Drawings
Get superior quality Millwork Shop Drawings and custom Millwork Shop Drawings from the industry leaders
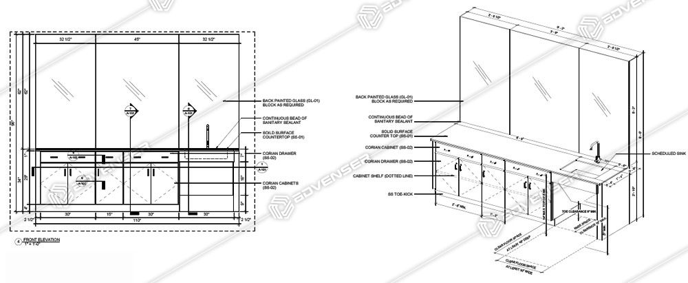
Since 2007, Advenser has been providing precise millwork shop drawings to a global clientele comprising architects, designers, woodwork contractors, builders, and project owners. Our team of skilled draftsmen with extensive experience in woodwork is also capable of creating customized shop drawings for architectural woodworking, casework, millwork, store fixtures, furniture and commercial cabinets
“We work following the drafting standards and codes that are unique to a project location, making us capable of delivering drawings that can easily be understood and followed by our clients”
What differentiates us?
“90% of the times the millwork drawings that are submitted to the architect for approval gets rejected- We handle that”
The shop drawings we deliver are well engineered and hence can be readily used for production. We ensure that we adapt our methodology to suit the drafting standards and codes of every project location enabling the fabricator to easily extract the required specifications for production helping him optimize his production or manufacturing process.


We offer the following Millwork Drafting Services
- Millwork shop drawings
- Cabinet shop drawings
- Custom Cabinet Drafting
- Custom Kitchen Drafting
- Custom Millwork Drafting
- Custom Home Office Drafting
- Built in Storage cabinets
- Kitchen cabinets & Counter tops
- Office Cabins
- Custom made Library
- Custom Library Drafting
- Custom Wood Paneling Drafting
- Custom Home Office Drafting
- Commercial Cabinet Drafting
- Store fixtures
- Custom made Wood Paneling / Steel Cladding
- Steel Corner Guards
- Vanity Shop Drawings
- Medicine Storage
Our experience
With over a decade of experience, we have delivered our services to industries spanning hospitals, hotels, malls, offices, universities, medical facilities, residences, commercial spaces, restaurants, kitchens, and custom bars. It is this extensive experience we have that makes us capable of developing well-coordinated drawings that are made with a focus on cost-effectiveness.
The international standards we follow
The team of draftsmen at Advenser make use of consistent and intuitive drawing standards and symbols, complying with international standards such as
- BS – British Standards
- AS- Australian standards
- JIC standards – Joint Industrial Council standards
- ISO standards- International Organization for Standardization
- BNQ- Bureau de normalization du Quebec

